Treillage, History, Applications and Revival
- Sean Kamana
- Oct 4, 2024
- 1 min read
Updated: May 21, 2025
The French named and conceived of treillage itself as a rational building style and aesthetic technique. During times of Kings and well past the guillotine, this method was employed to enrich gardens and interiors alike. The architectural embellishment of the simple wooden stick captures the eye of those craving both complexity and rhythmic harmony. The ordered nature of trellis as a building component, its classical inspirations, as well as the French patriotization of gardens and their follies gives this kind of finish a timeless and durable capacity. Trellis as an interior finish provides impressive results in various paints, indoor or outdoor applications, a loftiness while preserving its familiarity and casualness.
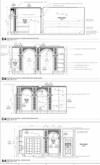
Some ideas for a interior commercial fit-out with a treillage finish:
Drawn by author.
Other interesting reading and images to quench outstanding curiosities. :
chrome-extension://efaidnbmnnnibpcajpcglclefindmkaj/http://www.tricotel.com/wp-content/uploads/Pdf/Plaquette_Tricotel.pdf
Exciting comparisons with the infinite and the endless garden can be compared to the narrative of Alice in Wonderland:
chrome-extension://efaidnbmnnnibpcajpcglclefindmkaj/https://unit-21.com/wp-content/uploads/2019/06/Misbah-Mahmood-Thesis_small.pdf

















Comments